형태, 기능, 흐름: 평면과 단면에서 적층된 볼륨을 탐구하는 7개 프로젝트

2025년 10월 29일

형태, 기능, 흐름: 평면과 단면에서 적층된 볼륨을 탐구하는 7개 프로젝트

형태와 기능에 관해서는, 어떤 것이 먼저인지 묻는 사람에 따라 달라집니다. 어떤 건축가들은 용도에서 시작해 기하학을 그다음으로 따라가게 두는 반면, 다른 이들은 뒤따르는 모든 것을 형상이 좌우하도록 만드는 강한 형태로 시작합니다.

하지만 과정의 시작점이 어디이든 간에, 특정 기하학은 오래도록 흔적을 남깁니다. 질량과 공백, 비율과 무게, 구조와 빛의 상호 작용은 건물이 주는 느낌과 우리가 거기에 어떻게 반응하는지를 정의합니다. 그중 몇 가지 몸짓은 독특한 볼륨을 차곡차곡 쌓는 방식처럼 돋보입니다. 한 공간이 예기치 않게 다른 공간을 품고 이어지는 질서, 균형, 리듬에는 본래의 만족감이 있습니다(혹은 우리가 아직도 레고 시절의 실험에서 벗어나지 못하고 그것들이 살아나는 모습을 즐길 뿐일지도 모릅니다).

별장과 호텔에서부터 사무실, 박물관에 이르기까지, 이 모음은 층을 이루는 기하학을 단순한 디자인 수법으로서가 아니라 성격과 연결감을 표현하는 방식으로 활용하는 일곱 프로젝트를 조명합니다.


NOT A HOTEL FUKUOKA

작성자: axonometric, 후쿠오카, 일본

In a quiet part of Fukuoka, this condominium hotel rises as a cluster of eight stacked volumes, each designed for a different way of living. The arrangement resembles a vertical neighborhood, with offset forms that shape terraces and gardens across the façade. Each level engages with the city differently, creating a rhythm of openness and retreat.

계단식 기하학은 건물의 규모를 부드럽게 만들고 주변의 저층 주택과 공원에 조화를 이룹니다. 내부에서는 서로 다른 생활 방식에 맞춘 다양한 방 배열이 집처럼 편안한 삶과 여행, 업무 사이의 흐름을 지원합니다. 그 결과는 도시적이면서도 가정적이며, 촘촘하고도 장소에 깊이 연결된 건축물이 됩니다.


Apple Garden House

작성자: I/O architects, 소피아, 불가리아

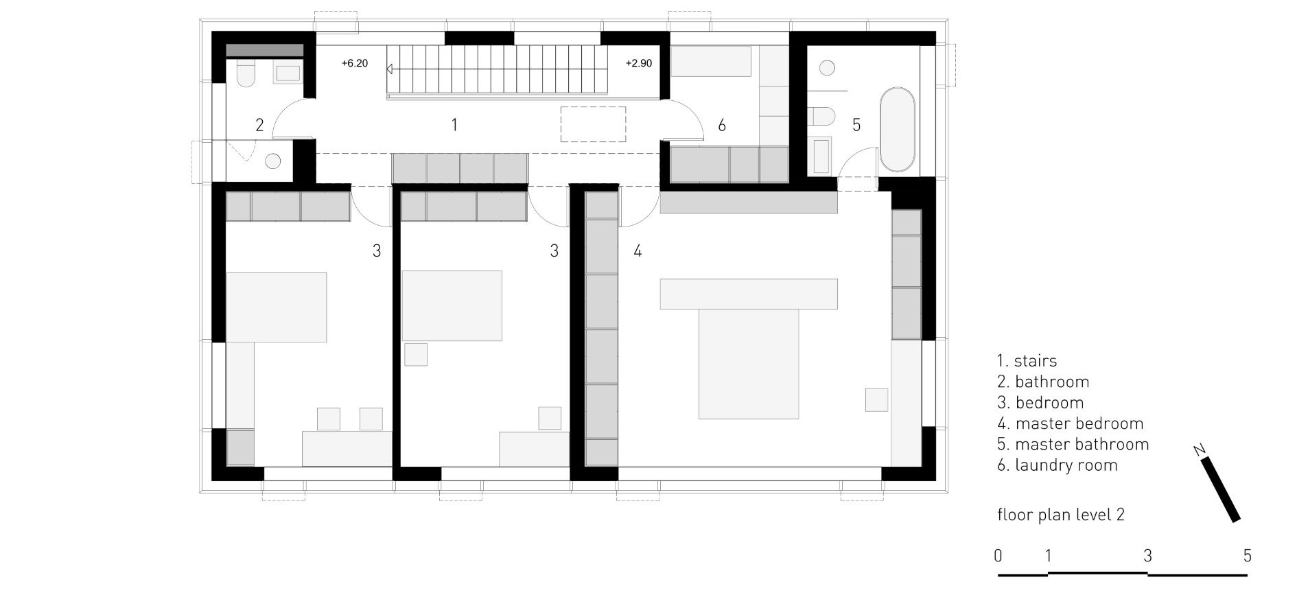
This three-level residence is shaped as a compact stack of volumes that respond to the sloped terrain and surrounding orchards. Each floor is slightly offset, creating varied overhangs and shaded terraces that frame views toward Vitosha Mountain. The structure’s simplicity is grounded by its heavy base, while lighter upper levels extend outward to catch sunlight. A diagonal stair links all floors, carving a continuous void through the interior and defining the house’s spatial rhythm. The restrained geometry allows the landscape to take precedence, with the materials and proportions referencing the modest guesthouse that shares the site.


Kimpton Huangshan

작성자: line+ studio, 황산시, 중국

심사위원 선택 수상, 제13회 A+Awards, 미완성 숙박

Shaped by the contours of a steep valley, this hotel unfolds through layered volumes that cascade down the hillside. Each block steps to form courtyards, terraces and skywells that filter light and air through the structure. The organization recalls the clustered logic of Huizhou villages, where roofs and alleys create depth and rhythm across the landscape.

공공 공간은 상부 “능선”을 따라 펼쳐져 멀리 보이는 산 풍경으로 열리고, 게스트 룸은 더 조용한 층들로 내려옵니다. 겹겹이 쌓인 기하학은 개방성과 폐쇄 사이의 대화를 만들어 내며, 지형을 공간적 구조로 바꿉니다. 절제된 재료와 균형 잡힌 형태를 통해 이 프로젝트는 지역의 성격을 현대적인 건축 언어로 옮깁니다.


Shunde Yunlu Wetland Museum

작성자: Studio Link-Arc, 광동성, 중국

Formed from four stacked concrete tubes, the Yunlu Wetland Museum rises quietly behind a line of cedar trees. Each volume rotates toward a different view, framing scenes of the wetland and Egret Island from varied heights. The shifting geometry turns the building into a vertical observatory, where visitors move from ground-level roots to treetop canopies.

삼각형 중앙 홀을 통해 네 층을 연결하고, 빛과 시선을 겹친 흐름이 겹겹이 쌓인 형태를 관통하게 합니다. 콘크리트 벽은 소나무 몰드의 질감을 남겨 표면에 부드럽고 자연스러운 질감을 부여합니다. 설정에 미치는 영향이 최소화되도록 고안된 이 구조물은 숲 속에 깊숙이 박혀 있는 느낌을 주며, 공간, 생태, 빛의 층층 구조를 체험하게 합니다.


Luxelakes Floating Headquarters Office

작성자: Vector Architects — 촬영 Deed Studio-UAE, 청두, 중국

Eleven offset office volumes rise above a lakeside site, forming courtyards and open passages that weave nature through the complex. The buildings are lifted on slender supports, creating shaded public areas and reflecting pools below. This stacked composition produces a sense of lightness, as if the structures hover over water and terrain.

각각의 안뜰은 나무로 둘러싸인 파사드에서부터 빛을 여과하는 반투명한 유리벽까지 다양한 재료 특성을 가지고 있습니다. 수직으로 배치된 다층의 공간은 서로 다른 층간으로 이어지는 계단과 산책로를 통해 연속적인 상승을 만듭니다. 이 기하학적 구성은 작업 공간, 경관, 움직임이 균형 있게 공존하는 계층적 시스템으로 프로젝트를 구성합니다.


Unstack House

작성자: FreelandBuck, 로스앤젤레스, 미국

Formed from a series of offset boxes cascading down a hillside, UnStack House explores how architecture can occupy steep terrain through movement and variation. Each volume rotates or shifts, opening terraces and voids that draw the landscape into the building’s core. The striped façade ties the staggered geometry together, creating visual continuity across seven stacked forms.

내부에서 공간은 서로 겹치는 문턱을 따라 흐르며 프로그램 간의 교차를 가능하게 하여 방의 사용 방식에 유연성을 제공합니다. 가운데 입구 층은 개인 구역과 공용 구역을 연결하면서도 개방성을 강조하고 분리를 유지합니다. 경사면에 얹히지 않고 그 안으로 흡수된 채로 San Gabriel 산맥의 풍경을 프레이밍하고 지면과의 밀접한 관계를 유지합니다.


Villa Alley

작성자: DALL OFFICE, 갈랏, 이란

Set against the rugged landscape near the stone village of Qalat, this villa is shaped through a series of stacked stone volumes that follow the site’s natural slope. The massing grows from the ground like part of the terrain, with each block slightly offset to frame terraces and views of the surrounding mountains. A linear alley runs through the entire composition, connecting the pool, courtyard and living areas in one continuous path. The geometry feels deliberate yet organic, creating a rhythm of solids and voids that guide both light and movement. Built primarily from local stone, the villa reflects its context while revealing a contemporary reading of Iran’s mountain architecture.

김 지훈

김 지훈

건축은 단순한 구조물이 아니라, 시대와 인간을 담는 언어라고 생각합니다. 서울대학교에서 건축학을 전공한 뒤, 다양한 도시에서 경험을 쌓으며 건축 저널리즘의 길을 걷고 있습니다. C3KOREA에서는 건축 비평과 인터뷰를 주로 담당하며, 한국 독자들에게 세계 건축의 맥락을 전하고자 합니다.

댓글 남기기